do
ARCHITECTURE
work
|
about
|
inspire
UK
|
PT
Previous
Next
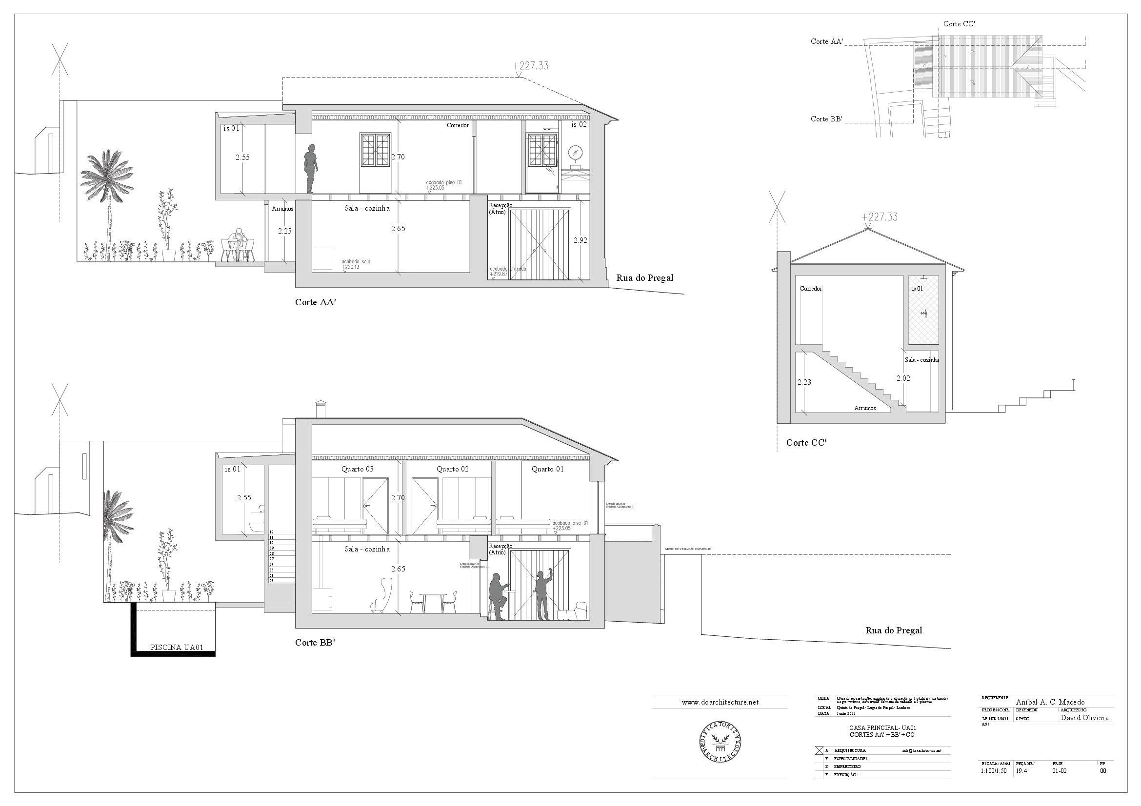
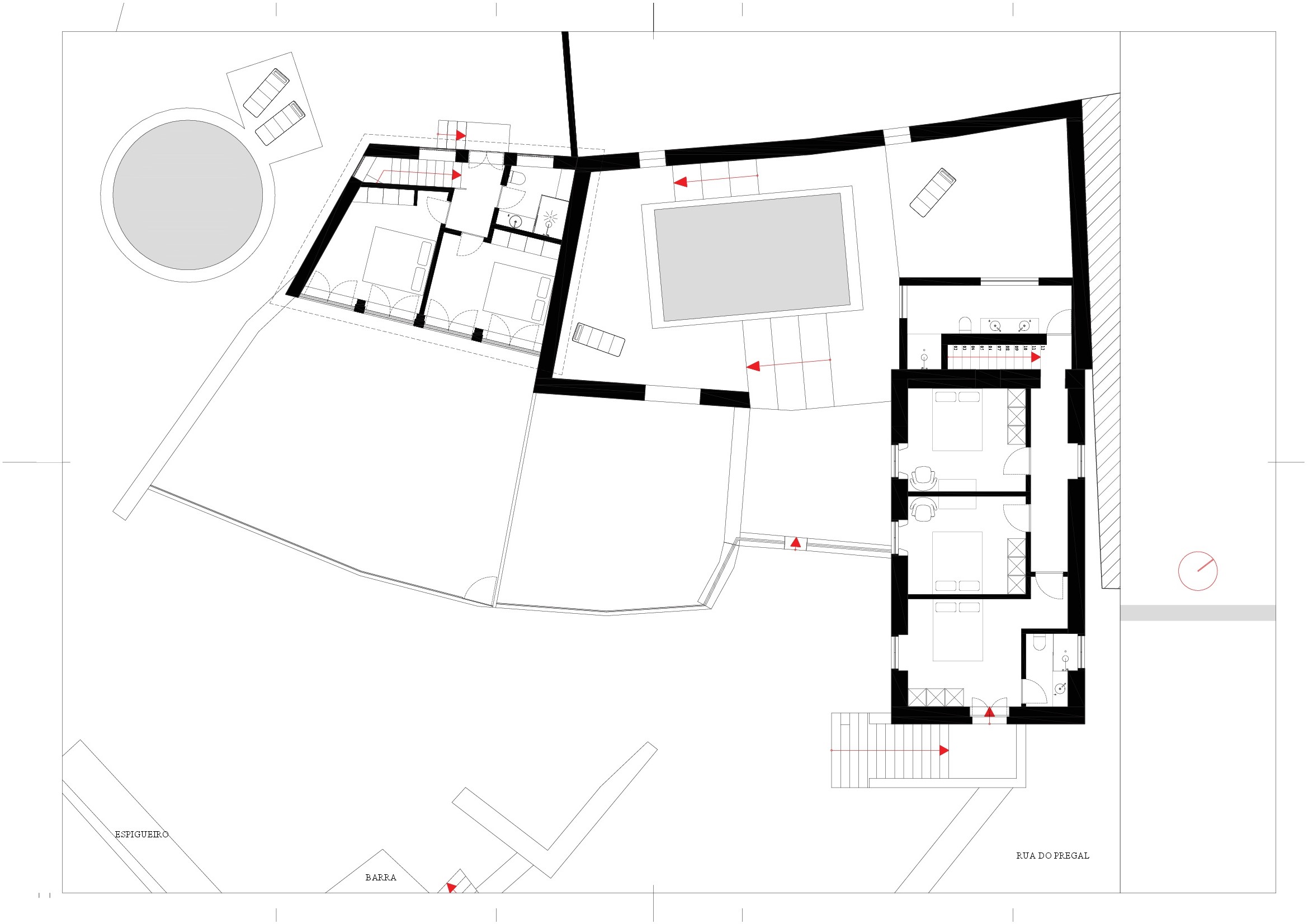
farm stay | pregal country house
script and building soon...
typology
hotel business
job
design project
place
Lanhoso | PORTUGAL
year
2022-24